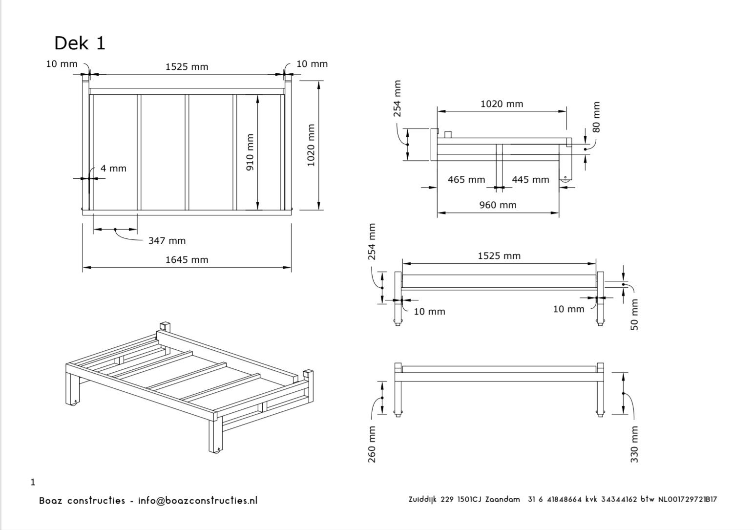
Compact grandstand
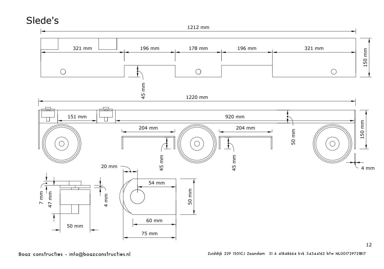
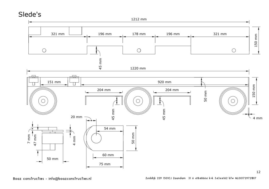
For several theaters and productions I have supplied backstage steel work from my own workshop, first in Amsterdam now in Zaandam.
An example is this collapsible grandstand built for the DeLaMar West venue in 2021.









An other example:


